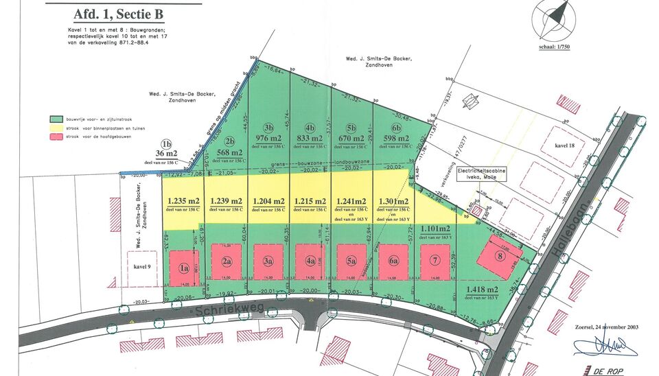
Schriekweg 1 a bouwgrond

REF: 7202102

Zandhoven

€ 320.000

  • 1.261 m²
Mooie bouwgrond net buiten de dorpskern van Zandhoven centrum en op wandelafstand van scholen en winkels. Open zicht op achterliggend weiland. Voorschriften binnen BPA Schriekvelden: 6 meter voortuin 17 meter diepte bouwzone 3 meter zijdelingse perceelsgrens, 14 meter breedte bouwzone Bijgebouw: minimum 10 meter tuin achter de achtergevelbouwlijn en met een maximum van 75 m2

Uw makelaar

Kristel Simkens

Kristel Simkens

Details van het pand

Financieel

Prijs
€ 320.000
Opbrengsteigendom
nee

Terrein

Perceel opp.
1.261,00 m²
Terreindiepte
62,00 m
Tuin
nee

Energie

Indeling

Terras
nee

Stedenbouwkundige informatie

P-score
D
Schatting Blijf op de hoogte